Cubus am Seestern, Düsseldorf

.
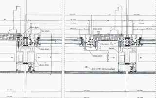
Das Bürohaus Cubus Seestern punktet mit einer innovativen Doppelfassade, die mit der Außentemperatur reagiert. Ihre Wirkungsweise wurde durch unsere Simulationen geprüft und optimiert. Die Fassade erfüllt höchste Anforderungen an Komfort bei hohen Energieeinsparungen.
Die Fassade passt sich dem Wetter an: Sie öffnet und schließt sich von selbst. Im Sommer kann keine Überwärmung auftreten, da die äußere Scheibe in ganzer Höhe aufklappen kann. Die Fassade imitiert damit Vorgänge aus der Natur, wie gesträubtes Gefieder oder das Öffnen und Schließen von Blüten.
Unser Beitrag
- Energiekonzepte
- Lichtsimulation
- Fassadenstudie, regelbare Doppelfassade
Nehmen Sie
jetzt Kontakt
mit uns auf
GadP Gebäude auf den Punkt GmbH
Brandsende 2-4
20095 Hamburg
| Tel.: | +49 40 5730751 0 |
Niederlassung Köln
Hospeltstraße 32
50825 Köln
| Tel.: | +49 221 7726807 0 |



